Standard Kitchen Cabinet Sizes In Mm
Standard kitchen cabinet sizes in mm ~ The width of floor cabinets usually increase in multiples of 150mm ie. A kitchen window was traditionally installed for a quick way to dispose of wet waste. Indeed lately has been hunted by consumers around us, maybe one of you personally. Individuals now are accustomed to using the internet in gadgets to see video and image information for inspiration, and according to the name of this article I will talk about about Standard Kitchen Cabinet Sizes In Mm Wall cabinets vary in size.
Standard kitchen cabinet sizes in mm ~ Width- 12-36 inches. The kitchen dimensions given below are for a standard table height nook. Your Standard kitchen cabinet sizes in mm picture are ready. Standard kitchen cabinet sizes in mm are a topic that is being searched for and liked by netizens now. You can Get or bookmark the Standard kitchen cabinet sizes in mm files here.

Standard kitchen cabinet sizes in mm | 35 Inspirational Height Of Upper Cabinets Kitchen Cabinets Height Kitchen Cabinet Dimensions Kitchen Cabinet Sizes
Standard kitchen cabinet sizes in mm ~ Thestandard floor cabinet depth is 580mminclusive of door thickness. The standard dimensions for kitchen base cabinets are. It all depends on your design needsThe standard size of a base cabinet is 345 inches tall without the countertop and 36 inches with the countertop. Again wall kitchen cabinet dimensions are specified in terms of their external dimensions.
Width mm Depth mm Standard Base Cabinet with Door and Drawer. This picture of Standard Kitchen Cabinet Sizes In Mm has dimension 961 x 768 pixels you can download and enlist the Standard Kitchen Cabinet Sizes In Mm picture by right click on the clicking the right mouse to get the high resolution version. The height of kitchen cabinets to the top of the bench should be between 850mm and 1000mm. A variety of door knobs and handles.
Kitchen Window A necessity in every kitchen. Standard width for a single or double door wall cabinet is generally available in widths from 9 to 36 we carry them in increments of 3 ie 9 12 15. Standard Kitchen Dimensions 6. Other base kitchen cabinets to consider.
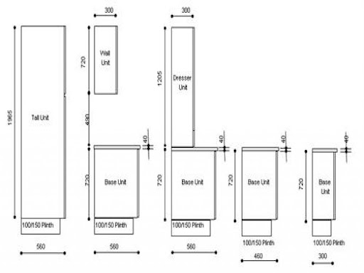
Standard wall cabinet depth is 12 inches for manufacturers working in inches and 30cm for manufacturers working in metric measurements. Therefore the optimum height for a kitchen window stands at 90 cm from the floor. 300 400 450 500 600. Height 720mm depth 560 600mm widths 150 300 350 400 450 500 600 800 900 1000 1200mm plinth 150mm worktop thickness 20 40mm worktop depth 600 650mm cabinet depth overhang at front overall height 890 910mm.
In standard kitchens the wall cabinets are typically 30 or 36 inches tall with the space above enclosed by soffits. Height 720mm Depth 560-600mm Widths 150 300 350 400 450 500 600 800 900 1000 1200mm Plinth 150mm Worktop thickness 20-40mm Worktop depth 600-650mm cabinet depth overhang at front Overall height 890-910mm. Standard Kitchen Cabinet Sizes In Mm Kitchen Cabinet Dimensions Kitchen Cabinet Sizes Cabinet Dimensions. Standard Base Cabinet Sizes Height.
Base cabinets may have a single door double doors a series of drawers or a combination of a drawer and doors. The kitchen cabinet sizes we have available for wall units cover an extensive range of widths and we also offer a range of styles to suit the needs of your kitchen. Standard wall cabinets are generally 24 inches in depth. Standard wall cabinet widths mirror the widths available for base cabinets ie 12 15 18 24 30 36 inches and 30 40 50 60 80cm.
It all depends on your design needs the standard size of a base cabinet is 34 5 inches tall without the countertop and 36 inches with the countertop. Base Cabinet with Five Drawers. Standard Cabinet Dimensions Available From Most Cabinet Guide To Standard Kitchen Cabinet Dimensions Maison Concept Urban Cabinet Black And Grey H 1344 X W 360 X D 1200 Mm I Spent 35 000 Remodeling My Kitchen And Here Are 10 Big. The minimum dimension for a booth or nook is 65 inches 165cm and this can expand to 80 inches 203cm with a table width of 30 inches 76cm which can expand to 40 inches 102cm.
These can vary by manufacturer. The industry standard kitchen cabinet depth is 600mm from front to back however this is often too tight to accommodate certain kitchen fittings. Where the cabinets run all the way to the ceiling 48-inch cabinets are the logical choice. Standard Kitchen Cabinet Sizes In Mm.
Here is imperative info on Base Cabinet Dimensions Size. A 12-inch or 15-inch tall cabinet fits neatly over a refrigerator. The toe kick portion of the cabinet is 4 12 H the standard door height is 24 H and the top drawer height is. Typically standard base cabinets measure 34 12 H and 36 H from the floor to the top of the countertop when a countertop is installed.
However contemporary kitchen windows facilitate ventilation and let in plenty of natural light. Floor cabinet widths generally increase by 100or 150mm increments See Fig. You could build it at counter height or bar height perhaps in an even narrower space. Standard dimensions for stock or DIY base floor cabinets are 720mm high by 560mm deep without the door.
300mm 450mm 600mm 750mm 900mm 1050mm 1200mm. Kitchen design trends change frequently and as new products become available often the industry standard kitchen cabinet sizes have to be adapted to suit.
If you are searching for Standard Kitchen Cabinet Sizes In Mm you've reached the perfect place. We ve got 20 graphics about standard kitchen cabinet sizes in mm adding pictures, pictures, photos, backgrounds, and more. In such web page, we additionally have number of images available. Such as png, jpg, animated gifs, pic art, logo, black and white, translucent, etc.
Kitchen design trends change frequently and as new products become available often the industry standard kitchen cabinet sizes have to be adapted to suit. 300mm 450mm 600mm 750mm 900mm 1050mm 1200mm. Your Standard kitchen cabinet sizes in mm images are available. Standard kitchen cabinet sizes in mm are a topic that has been searched for and liked by netizens today. You can Get or bookmark the Standard kitchen cabinet sizes in mm files here.
Standard dimensions for stock or DIY base floor cabinets are 720mm high by 560mm deep without the door. You could build it at counter height or bar height perhaps in an even narrower space. Your Standard kitchen cabinet sizes in mm picture are ready. Standard kitchen cabinet sizes in mm are a topic that has been searched for and liked by netizens now. You can Get or bookmark the Standard kitchen cabinet sizes in mm files here.
Floor cabinet widths generally increase by 100or 150mm increments See Fig. However contemporary kitchen windows facilitate ventilation and let in plenty of natural light. Your Standard kitchen cabinet sizes in mm picture are ready in this website. Standard kitchen cabinet sizes in mm are a topic that has been hunted for and liked by netizens today. You can Find and Download or bookmark the Standard kitchen cabinet sizes in mm files here.
Typically standard base cabinets measure 34 12 H and 36 H from the floor to the top of the countertop when a countertop is installed. The toe kick portion of the cabinet is 4 12 H the standard door height is 24 H and the top drawer height is. Your Standard kitchen cabinet sizes in mm photographs are available in this site. Standard kitchen cabinet sizes in mm are a topic that has been searched for and liked by netizens today. You can Get or bookmark the Standard kitchen cabinet sizes in mm files here.
A 12-inch or 15-inch tall cabinet fits neatly over a refrigerator. Here is imperative info on Base Cabinet Dimensions Size. Your Standard kitchen cabinet sizes in mm pictures are available. Standard kitchen cabinet sizes in mm are a topic that has been searched for and liked by netizens now. You can Find and Download or bookmark the Standard kitchen cabinet sizes in mm files here.
If the publishing of this site is beneficial to our suport by sharing article posts of the site to social media marketing accounts you have such as for example Facebook, Instagram among others or can also bookmark this blog page using the title Image Result For Standard Width Size Of Cabinet In Mm Kitchen Cabinet Sizes Kitchen Layout Outdoor Kitchen Design Employ Ctrl + D for laptop or computer devices with Windows operating system or Command + D for personal computer devices with operating-system from Apple. If you use a smartphone, you can even utilize the drawer menu of this browser you use. Be it a Windows, Mac, iOs or Google android operating-system, you'll still be in a position to download images using the download button.






Posting Komentar untuk "Standard Kitchen Cabinet Sizes In Mm"